CASĂ DUPLEX
Proiectul pe care vi-l propunem este un duplex format din două case identice fiecare cu o suprafață utilă de 111.49 mp. Aceste case cu câte trei dormitoare pot reprezenta proiectul ideal pentru două familii care au moștenit o parcela de teren mai îngustă și care doresc să locuiască împreună. Casa tip duplex este formată din parter și etaj situat la mansardă și are o arhitectură simplă, fațadele fiind albe, iar cea din spatele casei este decorată cu lemn.
IMAGINI:
CASĂ PARTER
Această casă cu arhitectură clasică ne aduce aminte de vechile case boierești cu multe ferestre și verande mari. Fațada de culoare albă se îmbină armonios cu finisajele din piatră și cu ferestrele din lemn stratificat. Având în vedere că are doar parter, această casă este perfectă pentru familiile cu copii mici sau pentru persoanele în vârstă care au dificultăți de deplasare.
IMAGINI:

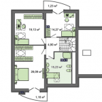
CASĂ CU MANSARDĂ
La interior găsim o compartimentare aerisită cu încăperi mari și înalte. Și chiar nu te-ai fi așteptat să fie așa de încăpătoare, mai ales că este vorba de o casă mică. Însumând suprafața locuibilă a parterului și a mansardei, avem 140 mp locuibili. Cu tot cu garaj, balcoane și terasă avem 190 mp suprafața utilă.
IMAGINI:
CASĂ MINIMALISTĂ
Datorită dimensiunilor lor, adesea în strânsă legătură cu bugetul, casele minimaliste utilizează un sistem simplu, cu o structură lejeră, în general constituită din cadre de lemn sau dintr-o fină structură metalică, facilitând construcția pe terenuri izolate sau inaccesibile. Casele minimaliste în particular au devenit foarte populare și datorită diferiților factori sociali, astfel acestea devin nu doar locuri de adăpost și recreere, ci și spații de lucru și divertisment.
IMAGINI:
CASĂ MINIMALISTĂ 2
Datorită dimensiunilor lor, adesea în strânsă legătură cu bugetul, casele minimaliste utilizează un sistem simplu, cu o structură lejeră, în general constituită din cadre de lemn sau dintr-o fină structură metalică, facilitând construcția pe terenuri izolate sau inaccesibile. Casele minimaliste în particular au devenit foarte populare și datorită diferiților factori sociali, astfel acestea devin nu doar locuri de adăpost și recreere, ci și spații de lucru și divertisment.
IMAGINI:
CASĂ CU ETAJ
Ideal dacă vă doriți o casă mică, dar încăpătoare, are o arhitectură armonioasă ce se reflectă în compartimentarea sa functională. Acesta este un proiect de casă pentru o familie numeroasă cu un living cu zona de dining pentru a lua masă alături de cei dragi, 3 dormitoare pentru ca cei mici să aibă propriul lor spațiu, două băi și o cameră generoasă pentru depozitare. Căminul din categoria caselor cu etaj, este destinat unui teren de cel putin de cel putin 350 mp, cu un front stradal de minim 13,5 m.
IMAGINI:
MENȚIONĂM CĂ ACESTE PROIECTE AU TITLU INFORMATIV ȘI NU SUNT CREATE DE CĂTRE NOI.



































